• By Touatia Amraoui
  • Last updated 11 November, 2016

Tipasa, Atelier A (Tipaza, Algeria)

Algeria > Tipaza Province > Tipaza


Les locaux de l’atelier A comporte trois phases identifiées par l’étude du bâti.

  • Phase I : Il s’agit de vastes locaux commerciaux ouverts sur une voie au nord, cet état est probablement antérieur au IIIe siècle p.C.
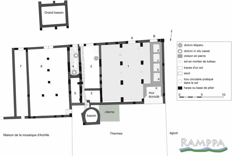
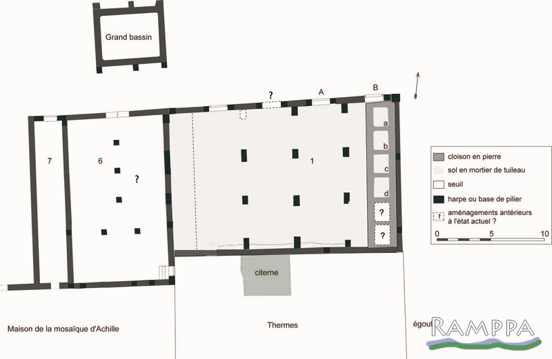
  • Phase II : L’atelier implanté au cours du IIIe siècle comporte une vaste pièce 1 à piliers accessible depuis la voie nord, avec, au minimum, six cuves de salaisons alignées le long du mur oriental.
  • Phase III : Il s’agit du dernier état. Les thermes publics mitoyens au sud se sont étendus probablement au cours du IVe siècle vers le nord, aux dépens de l’atelier A qui présente une pièce 1 à piliers réduite (164 m²). Elle ne conserve que quatre cuves puisque les deux au sud ont été remblayées pour construire le bassin citerne e des thermes.

Les bassins de salaisons ont une forme rectangulaire, avec des angles arrondis, le fond est couvert d’un opus spicatum.

Suite aux différentes phases d’aménagement et faute de sondages, il n’a pas permis de déterminer l’approvisionnement en eau de l’atelier.

Volume estimé phase II : 15,84 m3.

Volume estimé phase III : 10,60 m3.

Ressources marines

Oui, quelques écailles et des arêtes ont été prélevées au fond d’une cuve dans les années 1950 mais ils sont trop minimes pour pouvoir identifier une variété de poisson.

Chronology

Trois états identifiés :

Phase I : IIe-IIIe s. (?)
Phase II : IIIe-IVe s.
Phase III : IVe-Ve s.

Les quelques éléments observés dans les réserves et sur le site par T. Amraoui datent soit du IIe-IIIe siècle p.C. (sigillée claire A), soit du Ve-VIe s. (dont des lampes tardive Bussière E IV) ; ils pourraient correspondre aux deux phases d’occupation les plus extrêmes de ce secteur, avant l’installation de l’atelier et après son abandon.

Bibliography

  • Amraoui, T. 2014, "La production urbaine de salaisons en Algérie romaine : l’exemple de Tipasa (Maurétanie césarienne)", In: Botte, E.& Leitch, V. (eds.). Fish & Ships. Production et commerce des salsamenta durant l’Antiquité, BiAMA Aix-en-Provence. pp. 91-101. (pp. 91-101).
  • Baradez, J. 1952, Tipasa, ville antique de Maurétanie. Alger. (pp. 39-40).
  • Leschi, L. 1953, "L'archéologie algérienne en 1952", RAf, vol. 97, pp. 256. (p. 256).

Cetaria file citation

Touatia Amraoui, «Tipasa, Atelier A (Tipaza, Algeria)»,  RAMPPA, Atlantic-Mediterranean Excellence Network on Ancient Fishing Heritage (http://ramppa.uca.es/cetaria/tipasa-atelier-a), 11 November, 2016.

Download File

3 images in Gallery

Chronology

-550 700

Geographic location

Roman province: Mauretania Caesariensis