• By Rafael Jiménez-Camino Álvarez, Dario Bernal Casasola
  • Last updated 12 November, 2016

Iulia Traducta (Parque de las Acacias) (Algeciras, Spain)

Spain > Andalusia Community > Province of Cádiz > Algeciras


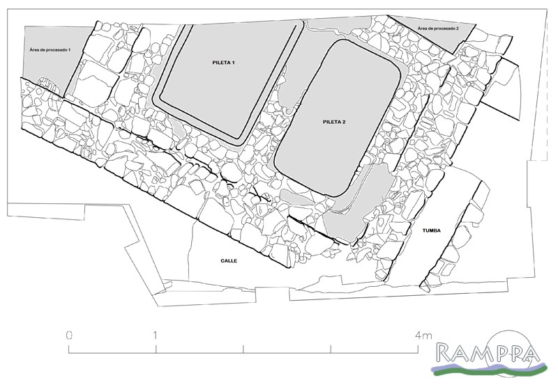
Cetaria situada en el barrio industrial de Iulia Traducta. En el año 2015, se excavó parte de una fábrica en la que se documentaron dos piletas y dos pavimentos del área de procesado. La fábrica tiene acceso a uno de los cardines de la ciudad. Las piletas son rectangulares, con dos tamaños diferentes (1,20 x 1,62 m y 0,90 x 1,68 m), vértices redondeados y una moldura de cuarto de bocel en el fondo. La capacidad productiva de la balsa excavada es de 2,33 m3, siendo la del edificio al cual pertenece mucho mayor, imposible de cuantificar actualmente.

Ressources marines

Se han recuperado abundantes restos malacólogicos y vértebras de pescado. El material aún no se ha procesado y se ha reservado un volumen importante del sedimento para futuro tratamiento.

Chronology

Romano Altoimperial. Construcción (estimada: posterior a inicios del tercer tercio del s. I a.C.). Abandono pileta: mediados siglo II d.C. 

Construcción: estimada con un terminus post quem en la fundación de Iulia Traducta (33-27 a.C.) 

Amortización a mediados del siglo II d.C. en base al estudio del material cerámico: Cerámica fina: ARSW A; Cerámica común: Hayes 23B, Hayes 181, Hayes 197, Hayes 196; Ánforas: Beltrán IIA y IIB, Africana IIA, Gauloise 4, Camulodunum 184, Agora M45 - Early ephesian type.
 

Bibliography

No information about.

Cetaria file citation

Rafael Jiménez-Camino Álvarez, Dario Bernal Casasola, «Iulia Traducta (Parque de las Acacias) (Algeciras, Spain)»,  RAMPPA, Atlantic-Mediterranean Excellence Network on Ancient Fishing Heritage (http://ramppa.uca.es/cetaria/iulia-traducta-parque-de-las-acacias), 12 November, 2016.

Download File

3 images in Gallery

Dario Bernal Casasola (Universidad de Cádiz)

39 files created by this author

Baelo Claudia (oeste del macellum) (Tarifa), Baelo Claudia I (Tarifa), Baelo Claudia IV (Tarifa), Baelo Claudia V (Tarifa), Baelo Claudia VI (Tarifa), Baelo Claudia VII (Tarifa), Baelo Claudia X (Tarifa), Baelo Claudia XI (Tarifa), Baelo Claudia XII (Tarifa), Calle Cardenal Cisneros nº 11 (Huelva), Calle Luis Milena (San Fernando), Calle Millán Astray nº 4, 6, 8 (actualmente c/ Tres de agosto) (Huelva), Calle Padre Castrillón (Barbate), Calle Palos nº 21 y 23 (Huelva), Cerro del Trigo (Almonte), Club Náutico La Caleta (Cádiz), Coto de la Isleta (Chiclana de la Frontera), El Eucaliptal (Punta Umbría), Guadalquitón-Borondo (San Roque), Guadarranque (San Roque), Iulia Traducta (c/ San Nicolás 7) (Algeciras), Iulia Traducta (Parque de las Acacias) (Algeciras), Iulia Traducta A (c/ San Nicolás 1) (Algeciras), Iulia Traducta B (c/ San Nicolás 1) (Algeciras), Iulia Traducta C-D (c/ San Nicolás 1) (Algeciras), Iulia Traducta I (c/ San Nicolás 3-5) (Algeciras), Iulia Traducta II (c/ San Nicolás 3-5) (Algeciras), Marsa II – Koudiat Toummas (Tétouan), Metrouna (Sidi Abdeslam), Plaza de la Encarnación (Sevilla), Punta Camarinal (Cádiz), Retín - Manzanete - Novillero (Barbate), Septem Fratres I (Parador Turismo - Puerta Califal) (Ceuta), Septem Fratres II (Aparcamiento c/ Gran Vía) (Ceuta), Septem Fratres III (c/ Gómez Marcelo) (Ceuta), Septem Fratres IV (Paseo de las Palmeras nº 16-24) (Ceuta), Septem Fratres V (c/ Queipo de Llano) (Ceuta), Teatro Andalucía (Cádiz), Villa Victoria (San Roque - Puente Mayorga)